
DTU’s nye Climate Challenge Laboratory, Bygning 313, viser, hvordan universelt design kan være integreret fra start i et avanceret laboratoriebyggeri. Resultatet er en bygning, hvor alle kan bidrage til at løse klimaudfordringerne.
Ingeniør: Artelia (MOE)
Entreprenør: MT Højgaard Danmark A/S
Landskarkitet: 1:1 Landskab og Habitats Aps
Indretning af fællesarealer: C.F. Møller Architects
Lydfilen er produceret af et menneske, men oplæserstemmen er genereret ved hjælp af kunstig intelligens.
Hvordan får man en teknisk tung laboratoriebygning til at gå op med både ambitiøse bæredygtighedskrav og universelt design? DTU's nye Climate Challenge Laboratory, Bygning 313, viser en vej frem ved at kombinere banebrydende konstruktionsløsninger med systematisk tænkning om inklusion.
Resultatet er en forskningsbygning, hvor arkitekturen aktivt understøtter visionen om, at "DTU er for alle, der kan og vil."
Læs også vores interview med bygherre: Man skal ikke være bange for universelt design.
Det første der slår én ved ankomsten til Bygning 313 er varmen fra træet. Det er en kontrast til de typiske associationer, vi kan have med laboratoriers sterile overflader og tekniske installationer.
Bygningen består af to separate konstruktioner: en træbygning med kontorer og fællesarealer og en betonbygning med laboratorier. Opdelingen er nødvendig på grund af brandkrav for laboratorier, men arkitektonisk bliver det til en styrke, for oplevelsen af skiftet mellem de to materialer er tydelig. Man mærker det i lyden, i duften og i det generelle indeklima, hvilket giver en ekstra dimension til brugerens oplevelse af bygningen.
Træet fortsætter hele vejen op gennem bygningen. Materialiteten giver en sanselig oplevelse med taktile overflader og stærke dufte fra både CLT-søjler og akustikpaneler. Trætrappen snor sig elegant gennem bygningens atrium og forbinder etagerne både funktionelt og sanseligt – en kontrast til de synlige ventilationsrør og tekniske installationer i laboratoriedelens betonverden. Samtidig indrammer den én af de fire kunstværker af Tue Greenfort, som findes gennem bygningen: HELIOS, en stor lysende skive i glas, som forestiller solen.
Når man bevæger sig gennem døråbningen fra træ til beton, træder man ind i teknologiens domæne. Her er intet skjult: Ventilationsrør, tekniske systemer og laboratoriernes avancerede udstyr står frem som bygningens funktionelle DNA. Laboratorierne ligger som robuste rum i forskellige størrelser, skræddersyet til forskellige behov. Når døren til denne del står åben, bliver det tydeligt, hvordan lyden fra maskinerne holdes effektivt adskilt fra kontorerne. To kontraster, træ og beton, der mødes og giver mening.
Bygningen byder mange forskellige typer brugerbehov velkomne og tilbyder nem orientering med lys og imødekommenhed som gennemgående temaer. Allerede ved ankomsten kan man trække sig ind i en af nicherne eller sætte sig i det større caféområde, hvor alle områder tilbyder forskellige siddemuligheder – stole med eller uden armlæn, høje og lave borde, polstrede og hårde overflader.
Orientering er et bærende greb gennem hele bygningen. Søjlerne ved indgangen er placeret sådan, at man med mobilitystok kan orientere sig og blive ledt mod trapperne. Niveauskiftet omkring trapper og reposer er tydeligt markeret, og trappens håndlister er mærket med én knop ved første sal, to ved anden osv. – en enkel, men effektiv løsning, der både beriger designet og guider brugeren.
Det er en arkitektur, der indtænker forskellige aspekter af orientering – både den fysiske og den mentale. Man får som bruger tid til at orientere sig og vælge, hvordan man vil bruge bygningen. Lyset lukkes ind fra flere sider og skaber lyse, luftige atmosfærer, der fungerer både for dem, der venter på at undervisningen starter, og dem der har brug for en pause fra arbejdet.
Planløsningen varierer for de enkelte etager, så man intuitivt kan fornemme, hvor i bygningen man befinder sig. Træbygningen rummer kontorer, fælles café-køkkener og integrerede nicher til pauser, telefonsamtaler eller en stille stund væk fra skærmen. Alle områder er indrettet med forskellige møbler, der imødekommer forskellige behov, brug og mennesker.
Hver etage har desuden et dedikeret stillerum, hvor gardiner kan rulles ned, møblerne er bløde, og farverne afdæmpede. En mulighed for at trække sig væk fra laboratoriernes larm – en funktion, der vinder stadig større indpas i bygninger med mange brugere.
Bygning 313 rummer også moderne undervisningsfaciliteter, hvor farvesætning, lys og tilgængelighed har været centrale parametre. Rummene har mørkere vægge og lysere møbler, hvilket hjælper med orienteringen. Store vinduer lukker dagslyset ind, både fra omkringliggende haver og fra fællesarealer, og kan afskærmes efter behov. Flere ind- og udgange gør det muligt at forlade undervisningen diskret uden at tiltrække sig unødig opmærksomhed.
Et konkret eksempel på, hvordan universelt design tænkes ind fra begyndelsen, findes i bygningens toiletter. Her har man ikke blot installeret standardløsninger, men designet toiletter i tre forskellige størrelser: små, mellem og store. Tankegangen er enkel, men gennemtænkt. Nogle toiletter er små og alt er indenfor rækkevidde – en særlig fordel for mennesker uden syn, som har brug for at mærke sig frem.
De store toiletter har plads til kørestolsbrugere, og de er indrettet forskelligt, så der er toiletter til alle, uanset om man foretrækker højre eller venstre side. Et af toiletrummene er tænkt til scooterbruger og, der er bruser men også plads til skiftebriks. På alle toiletter er der desuden en hylde. Det har ikke været standard, men det er utroligt rart for mennesker, der har brug for at lægge ejendele eller hjælpemidler fra sig et øjeblik.
Det særlige ved Bygning 313 er ikke de enkelte løsninger, men måden de er opstået på. Universelt design har ikke været et tillæg til sidst, men en grundlæggende tilgang til at tænke designprocessen anderledes.
Metoden har betydet, at man i alle projektets faser har overvejet scenarier som den ph.d.-studerende på krykker efter en skiferie, forskeren med ADHD der har brug for at kunne trække sig tilbage, eller den svagtseende gæst til en ph.d.-forsvar.
Denne tilgang har ført til løsninger som de hæve-sænkeborde i laboratorierne, møbler i forskellige højder og med eller uden armlæn, og de mange mellemformer mellem private og sociale rum. Det handler ikke om at løse specifikke problemer for specifikke brugergrupper, men om at skabe fleksibilitet og valgmuligheder for alle.
Bygning 313 er et eksempel på universelt design – som en integreret del af arkitekturen fra begyndelsen af processen. Det kan mærkes, når man bevæger sig gennem bygningen: her er indbydende, sanseligt og gennemtænkt. Og det er ikke tilfældigt. Det er resultatet af et systematisk arbejde med at skabe arkitektur, der inkluderer i stedet for at ekskludere, og som anerkender, at mangfoldighed i forskergruppen styrker arbejdet med at løse nogle af vores tids største udfordringer.
En metode i værktøjskassen, der sikrer, at universelt design er med i hele processen. Det har de udviklet hos Christensen & Co Arkitekter. Vi tog i 2022 en snak med hovedkvinden bag, Janet Cohen Muntz, om udviklingen af metoden i forbindelse med bygning 313. Hun peger på, at tegnestuen nu pga. metoden kan argumentere for arkitektoniske kvaliteter på en ny måde. Du finder interviewet her.


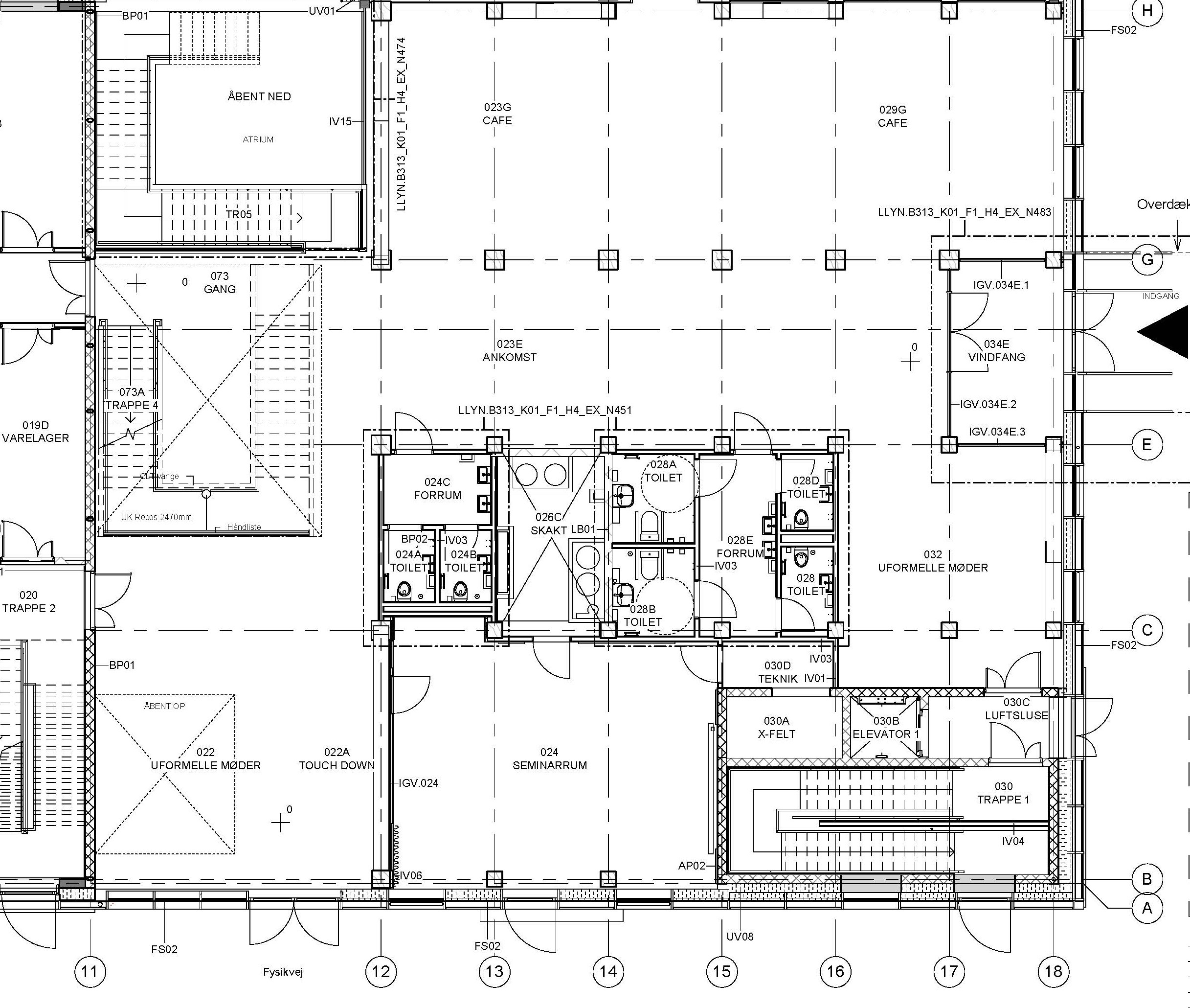
Søjlerne i ankomstrummet leder brugeren fra indgangen og hen til trappen - og tilbage igen. Tillige som duften af træ bidrager til wayfindingen.


Har man brug for at stoppe op eller opholde sig i ankomstrummet, tilbyder rummet forskellige siddemuligheder. Møblerne er en blanding af nyt og gammelt, da DTU har genbrugt mange møbler. Kontrastfarven på døren til venstre gør det lettere at finde den.


Søjlerne i stueetagen leder bevægelser fra indgangen (til venstre på planen) og videre ind i bygingen. Toiletkernen rummer toiletterne i forskellige størrelser og tilbyder valgmulighed alt efter behov.


Da man var nødt til at placere elevatoren langt fra trappen, er der gjort meget for at gøre det indbydende og attraktivt at komme til elevatoren, så det ikke føles som en bagvej.


Seminarrummene er udstyret med gardiner, så man både kan vælge at få lys ind af glaspartierne, men også afskærme og dermed bidrage til hulestemningen i rummet.


I pauserummet kan man trække sig tilbage måske mellem laboratoriearbejde og rapportskrivning. Også her er der genbrugt møbler.


Indretningen på reposerne varierer og tilbyder derfor valgmulighed alt efter præferencer og situation. Overalt møder man materialer, som taler til sanserne.


I processen har tegnestuen arbejdet med forskellige arkitektoniske virkemidler/kvaliteter i bygningen. De blev formidlet i planer med brug af piktogrammer. Her et udsnit der viser forskellige valgmuligheder, steder med stemningsskabende lys og wayfindingselementer.


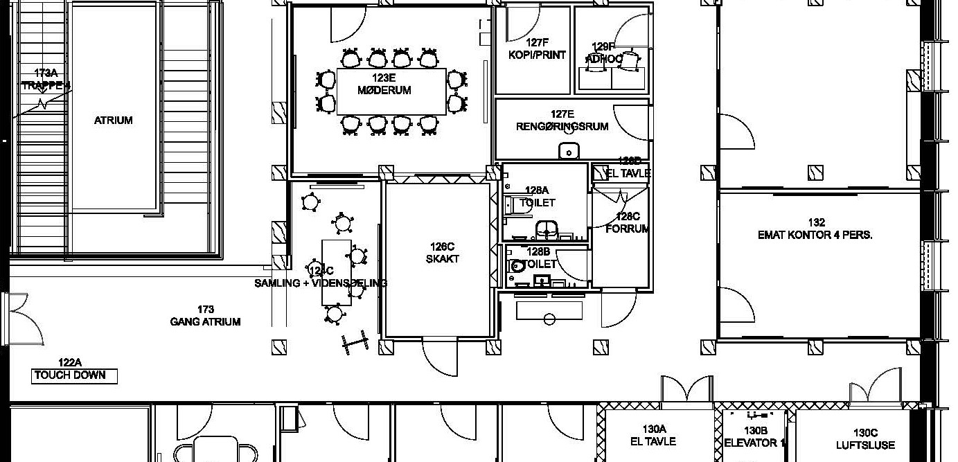
Arbejdspladserne er placeret i mindre kontorområder, som er forbundet via en gang. Den er brudt op og tilbyder et siddeområde, hvor det er muligt at trække sig eller tage telefonen.


På 1- 4. sal brydes gangzonen op og istedet tilbydes et sted til ophold.


I det supplerende trapperum er hver etage markeret på gelænderet i form af små mærkbare knopper, der viser hvilken etage, man er nået til. En løsning der ikke kan stå alene, men fungerer godt i sammenspil med flere af bygningens tiltag indenfor universelt design. Selvfølgelig er håndlisten gribeegnet.


Søjlerne i ankomstrummet leder brugeren fra indgangen og hen til trappen - og tilbage igen. Tillige som duften af træ bidrager til wayfindingen.


Har man brug for at stoppe op eller opholde sig i ankomstrummet, tilbyder rummet forskellige siddemuligheder. Møblerne er en blanding af nyt og gammelt, da DTU har genbrugt mange møbler. Kontrastfarven på døren til venstre gør det lettere at finde den.


Søjlerne i stueetagen leder bevægelser fra indgangen (til venstre på planen) og videre ind i bygingen. Toiletkernen rummer toiletterne i forskellige størrelser og tilbyder valgmulighed alt efter behov.


Da man var nødt til at placere elevatoren langt fra trappen, er der gjort meget for at gøre det indbydende og attraktivt at komme til elevatoren, så det ikke føles som en bagvej.


Seminarrummene er udstyret med gardiner, så man både kan vælge at få lys ind af glaspartierne, men også afskærme og dermed bidrage til hulestemningen i rummet.


I pauserummet kan man trække sig tilbage måske mellem laboratoriearbejde og rapportskrivning. Også her er der genbrugt møbler.


Indretningen på reposerne varierer og tilbyder derfor valgmulighed alt efter præferencer og situation. Overalt møder man materialer, som taler til sanserne.


I processen har tegnestuen arbejdet med forskellige arkitektoniske virkemidler/kvaliteter i bygningen. De blev formidlet i planer med brug af piktogrammer. Her et udsnit der viser forskellige valgmuligheder, steder med stemningsskabende lys og wayfindingselementer.


Arbejdspladserne er placeret i mindre kontorområder, som er forbundet via en gang. Den er brudt op og tilbyder et siddeområde, hvor det er muligt at trække sig eller tage telefonen.


På 1- 4. sal brydes gangzonen op og istedet tilbydes et sted til ophold.


I det supplerende trapperum er hver etage markeret på gelænderet i form af små mærkbare knopper, der viser hvilken etage, man er nået til. En løsning der ikke kan stå alene, men fungerer godt i sammenspil med flere af bygningens tiltag indenfor universelt design. Selvfølgelig er håndlisten gribeegnet.